全国服务热线
139 5368 9958
无填料净化塔
一、概述
净化塔广泛应用于各种化工、电工电子、铜锌冶炼、工业生产等多种领域的气体吸收、净化工艺,其结构形式多种多样,应用较多的是填料塔及板式塔。
我公司生产玻璃钢无填料净化塔一种无填料喷雾式气体净化塔,在本塔中无填料及气液交换塔盘等汽液交换装置,采用专利雾化器进行液体雾化,使汽液完全饱和接触。此种塔处理的主要有害气体为硫酸雾、盐酸雾、铬酸雾、硝酸雾、磷酸雾、氢氟酸雾、氯化氢、氟化氢、硫化氢、氰化氢等高污染行业的废气进行针对性的净化药业配制吸收、净化处理,达到工艺要求。玻璃钢塔体根据客户的气体浓度,温度,介质不同,选择不同的特殊材质,进行工艺设计,达到既耐腐蚀又经济适用。
二、工作原理
塔体外部的废气进入塔体内的气体分布器,经气体分布器分布后气体向塔上方行走,在行走的过程中,遇到被雾化器雾化的液体,气液进行完全饱和接触并进行物理吸收或化学反应,中和或吸收后的液体进入贮液箱,并由水泵抽走,中和或吸收后的达标气体则通过除雾器除雾后排入大气中。也可根据您方工艺要求设计成直接排出塔体进入废水池进水污水处理后,另作他用,,或者进行沉淀澄清以后根据酸碱度进行液体浓度再配制就行循环利用。
三、结构及特点

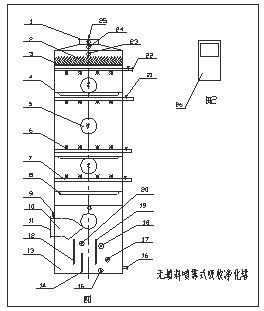
附图为本塔的结构示意图
其结构包括塔体、气体分布器、雾化器、液体再分布器、除沫器以及自控仪表元器件。
本塔特点:
1、不用填料及气液交换塔盘,系统阻力小,降低了风机功率,节约能耗;
2、采用专利雾化器,雾化喷嘴将液体完全雾化,气液交换面积大,吸收、净化充分;
3、因本塔采用雾化上喷,使液体与气体交换时,经过上下两上行程的交换,延长了一倍的交换时间;
4、因本塔省去了填料及塔盘,也就省去了填料及塔盘支架等支撑装置及装拆填料的人孔等,既为生产减少了工艺,又减轻了塔体的重量,使安装及基础变得简单化,节约了投资。
5、本塔塔体为玻璃钢整体缠绕的圆筒型塔体,无分段连接法兰,强度高、无渗露隐患。
6、本玻璃钢净化塔可进行成套设计,PLC编程自动控制,减少人工,配备气体在线分析仪、PH控制计、差压变送器、压力传感器、流量传感器、电导率仪、液位控制计、电磁阀、变频器及控制柜等组成的控制系统,以上控制情况均以数字形式显示在显示器界面上,使管理人员一目了然,并有故障报警,便于管理与维护。
注:我公司对您公司生产.生活中的综合废水可进行物化处理,生化处理,深度处理,有需求请联系我们。